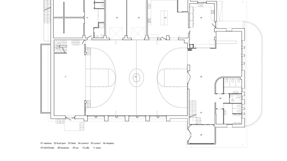
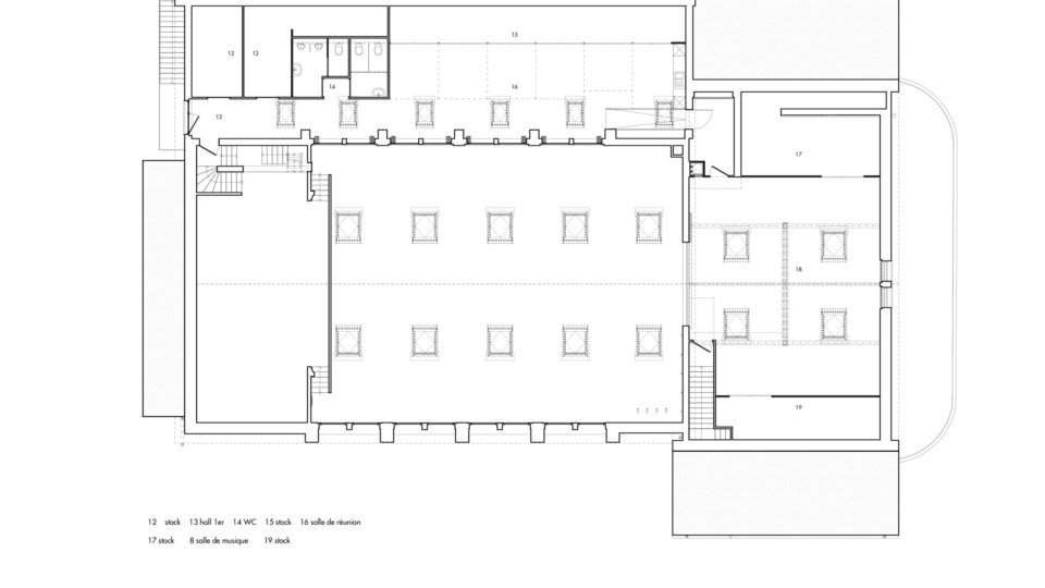
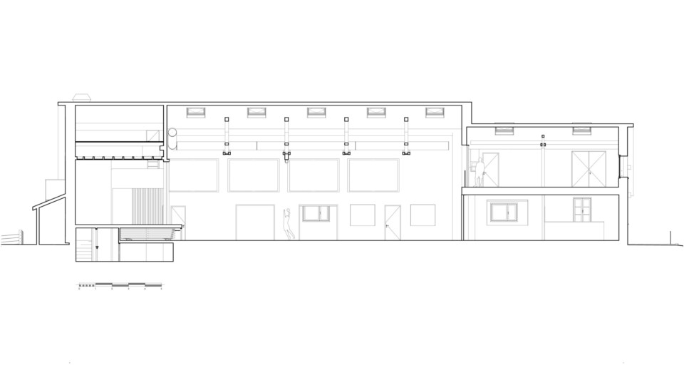
GRDS
Transformation salle communale
Bavois – VD
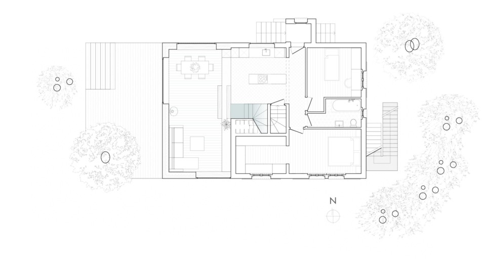
VER8
Extension de villa existante
Chavornay – VD
PAV22
Extension de villa existante
Neuchâtel – NE
CHE9
Transformations intérieures
Chamblon – VD
GRFL
Construction 2 immeubles
Le Landeron – NE
COLL17
Extension de villa existante
Colombier – NE
ADR7
Aménagement local commercial
Bevaix – NE
COT16
Rénovation maison villageoise
Cortaillod – NE
KNL
Construction villa familiale Chavornay – VD
TIL3
Agrandissement villa familiale Corcelles/Chavornay – VD
PAV22
Rénovation maison villageoise Neuchâtel – NE
MLH
Construction villa individuelle Chavornay – VD
MAG63
Aménagement appartement
Orbe – VD
JRD49
Transformations appartements Neuchâtel – NE
TSO3
Agrandissement villa existante Cheyres – FR
SAP3
Extension villa familiale
Chêne-Pâquier – VD




































































































